Skip to main content
New
Type of offer Sale
Type of apartment Flat 2+kt
Total area 49 (m^2)
Number 6194
Village Praha
  • Price incl. VAT 7 534 000,- per property

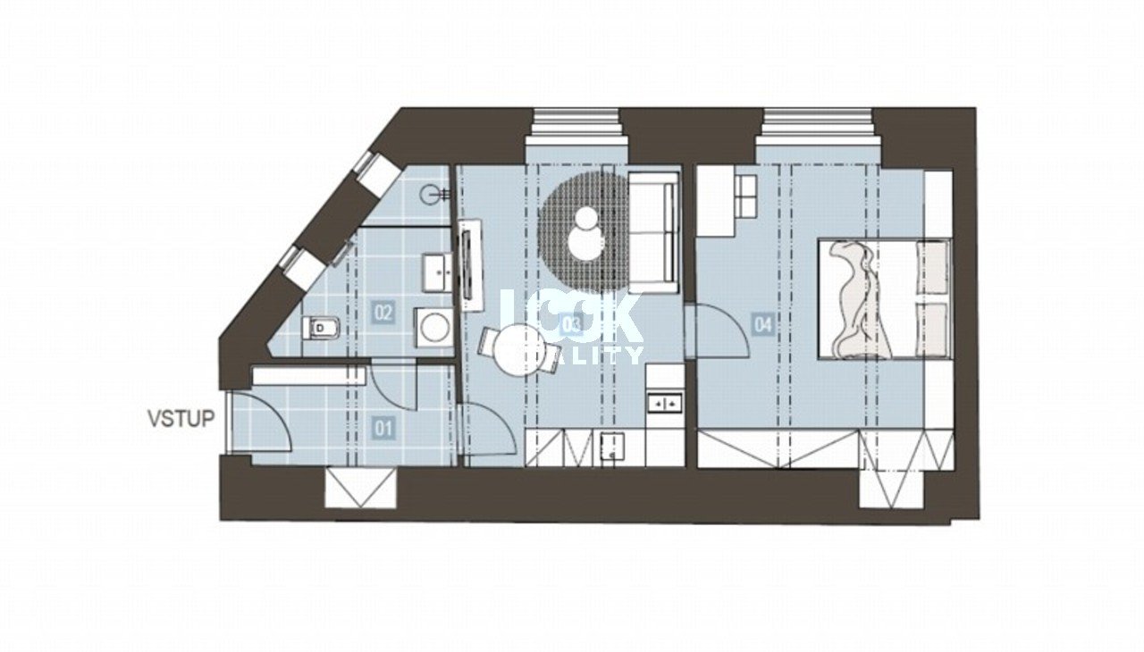
Spacious apartment in a popular location - Prague 3, Zizkov. We offer for sale a spacious 2+kk apartment with a floor area of 48.8 m2, located on Jeseniova Street in Prague 3, Zizkov. It is located on the first underground floor of a beautiful brick building. The apartment consists of a separate bedroom, a spacious living room with preparation for a kitchenette, a bathroom with a toilet and shower, and a hallway. he apartment is sold in its original condition - before renovation. To the apartment belongs a cellar of 1,7 m². In the surroundings there are all civic facilities - many cafes, restaurants, Lidl supermarket is 400 m away, Tesco 300 m. Within 5 minutes there is a primary and kindergarten. There is a popular park Parukarka - an ideal place for a walk, relaxation or a wide range of sports activities. In 7 minutes by tram you can get to OC Flora, where there are many services, shops and a cinema. Excellent transport links - in close proximity to the house there is a tram stop Biskupcova (tram 5, 7, 9, 10, 11,... and bus 133). Metro A - Flora is 7 minutes away by tram, 5 minutes by metro A - Zelivskeho. The city centre can be easily reached in 15 minutes. Nice living in a desirable location. Recommended. Photos are illustrative. The floor plan corresponds to the layout of the apartment.

We also provide reconstruction of apartments and houses. If you would like to change something on the property. Our real estate agency will help you with cleaning.
Condition object After reconstruction
Construction technology Brick
Public transport Yes
Kindergarten Yes
School Yes
Doctor Yes
Post office Yes
Shops Yes
Supermarket Yes
Services Yes
Usable area 48,8 (m^2)
Cellar (area) 1,7 (m^2)
Lift Yes
Cellar Yes
Class of energy performance of buildings G - extremely wasteful
ANCHOR_TOP_TITLE

This website uses cookies

This website is using cookies to provide services, personalize ads, and monitor traffic. By continuing to use this site you are agreeing with usage of cookies. More information.

Settings

Your privacy is important. You can choose from the cookie settings below. More information.